NOUVEAUX PRIX EN TVA 5.5% !
Une partition d’exception, une œuvre à habiter
Une composition audacieuse, inspirée par l’élégance d’une
cheffe d’orchestre visionnaire... Un lieu où l’architecture se fait musique, où
chaque ligne, chaque matière, chaque silence trouve sa justesse...
Au cœur du quartier du Millénaire, la résidence s’installe
dans un environnement rare : à deux pas des commodités, à proximité du Parc
Jane Évrard et ses 5 000 m² de nature. Un équilibre parfait entre dynamisme
urbain et sérénité résidentielle.
La résidence MAESTRA propose un éventail de logements
adaptés à tous les styles de vie, avec 60 appartements allant du studio au 4
pièces sur 3 niveaux mais également des appartements T3 et T4 en duplex.
Chaque espace de vie a été conçu avec soin pour offrir
luminosité, volumes généreux, et confort moderne. Les larges terrasses et
jardins privatifs invitent à profiter pleinement du climat méditerranéen.
Les prestations, personnalisables, vous permettront de créer
un appartement qui vous ressemble !
Résidence en co-promotion avec HELENIS
| N° LOT | ÉTAGE | NATURE | TYPE | SUPERFICIE m² | TVA | PLAN | PRIX | |
|---|---|---|---|---|---|---|---|---|
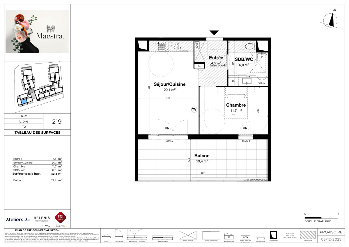
| A219 | 2 | N° de lot A219. Appartement + Parking sous-sol Balcon de 19,40 m² | 2p | 42,30 m² Plan | 5,5 % | ![]() | Plan | 217 154 € |
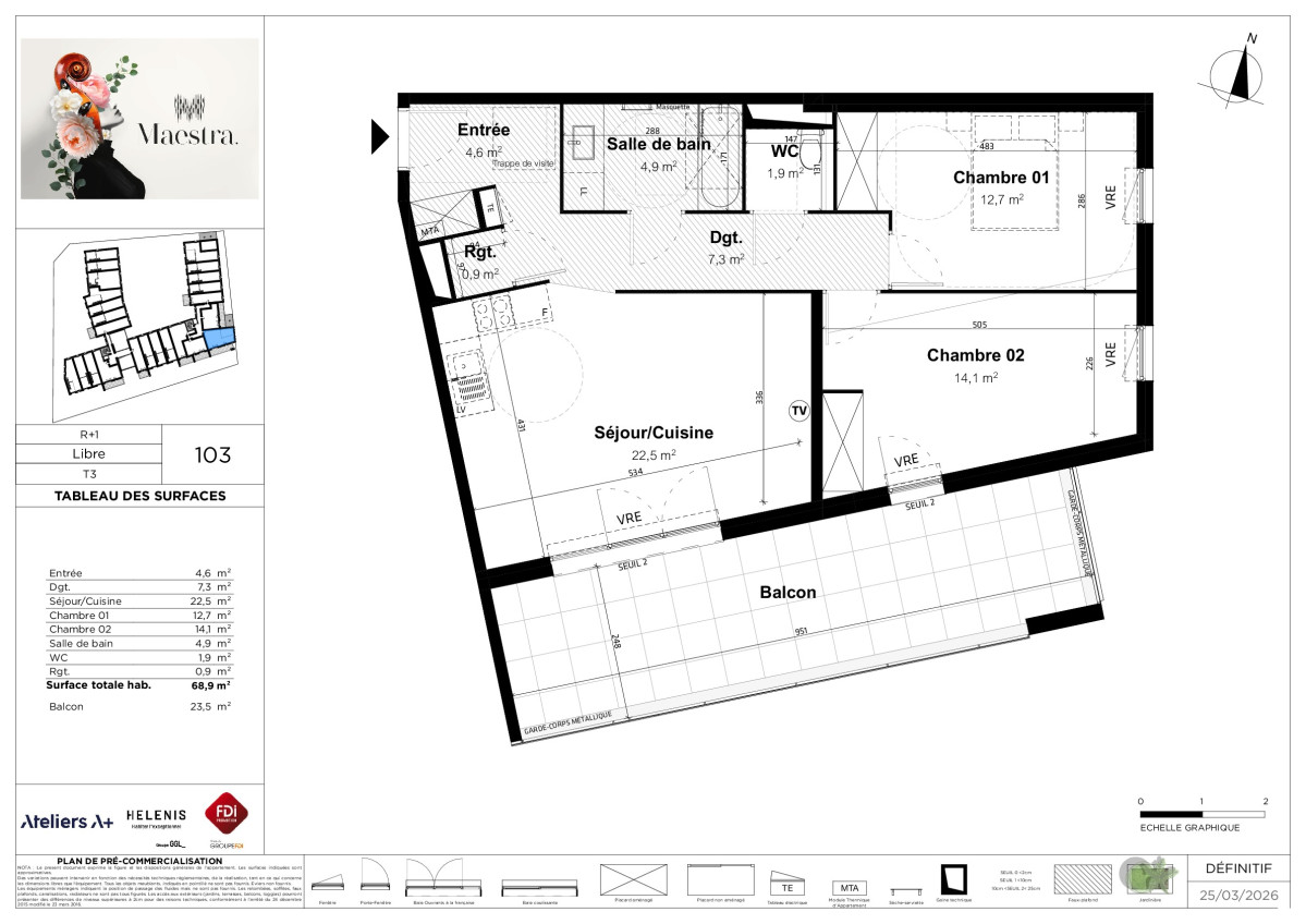
| A103 | 1 | N° de lot A103. Appartement + Parking sous-sol + Parking sous-sol Terrasse de 23,50 m² | 3p | 68,90 m² Plan | 5,5 % | ![]() | Plan | 282 213 € |
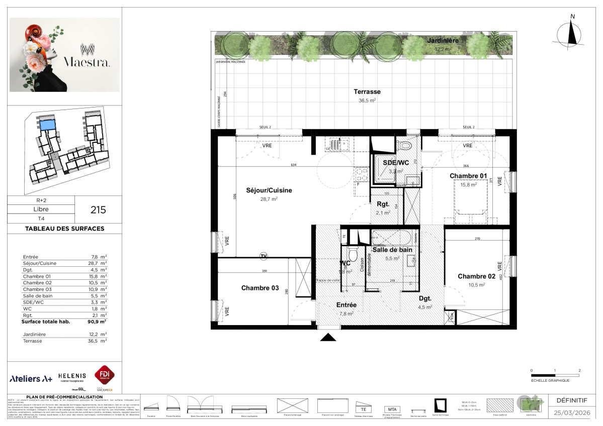
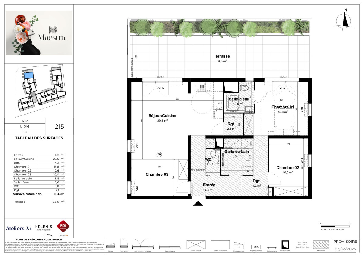
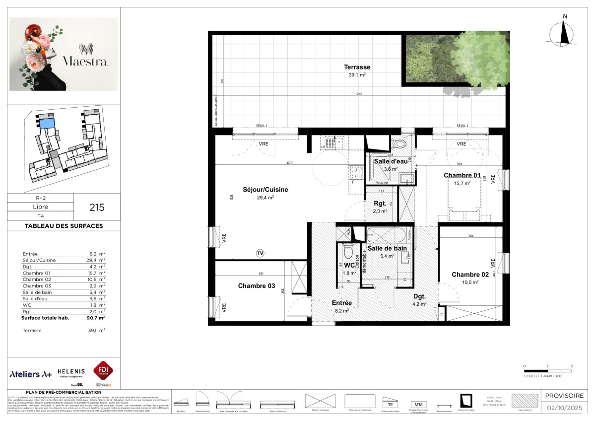
| A215 | 2 | N° de lot A215. Appartement + Parking sous-sol + Parking sous-sol Terrasse de 35,60 m² | 4p | 91,10 m² Plan | 5,5 % | ![]() | Plan | 385 075 € |
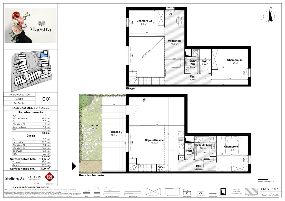
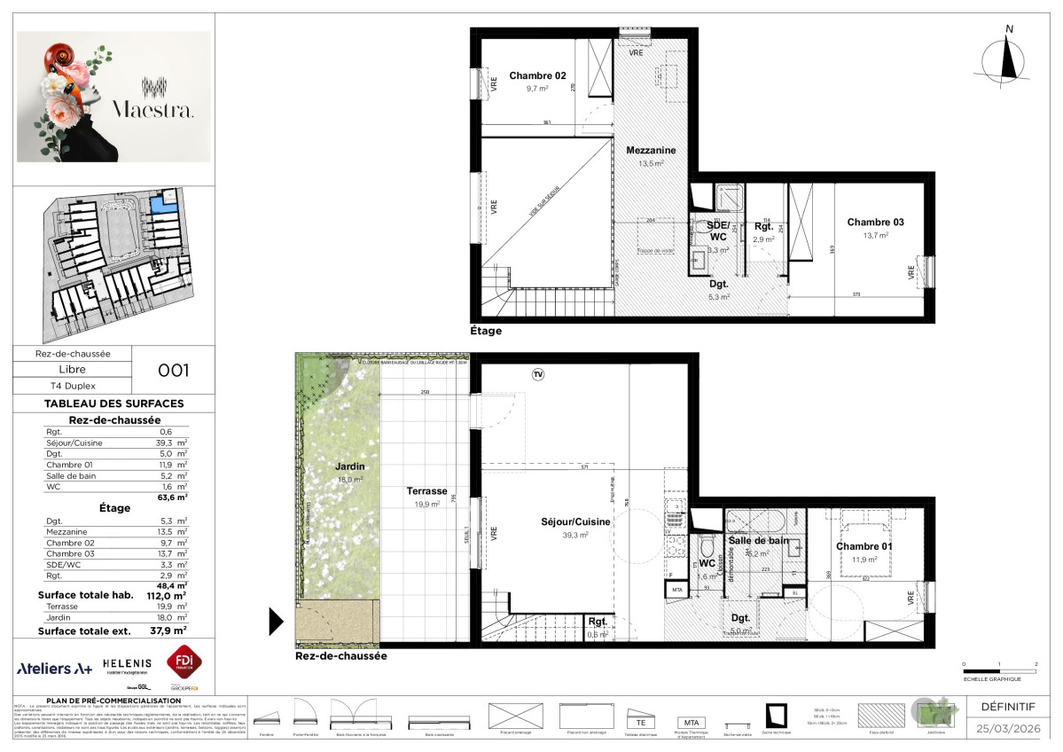
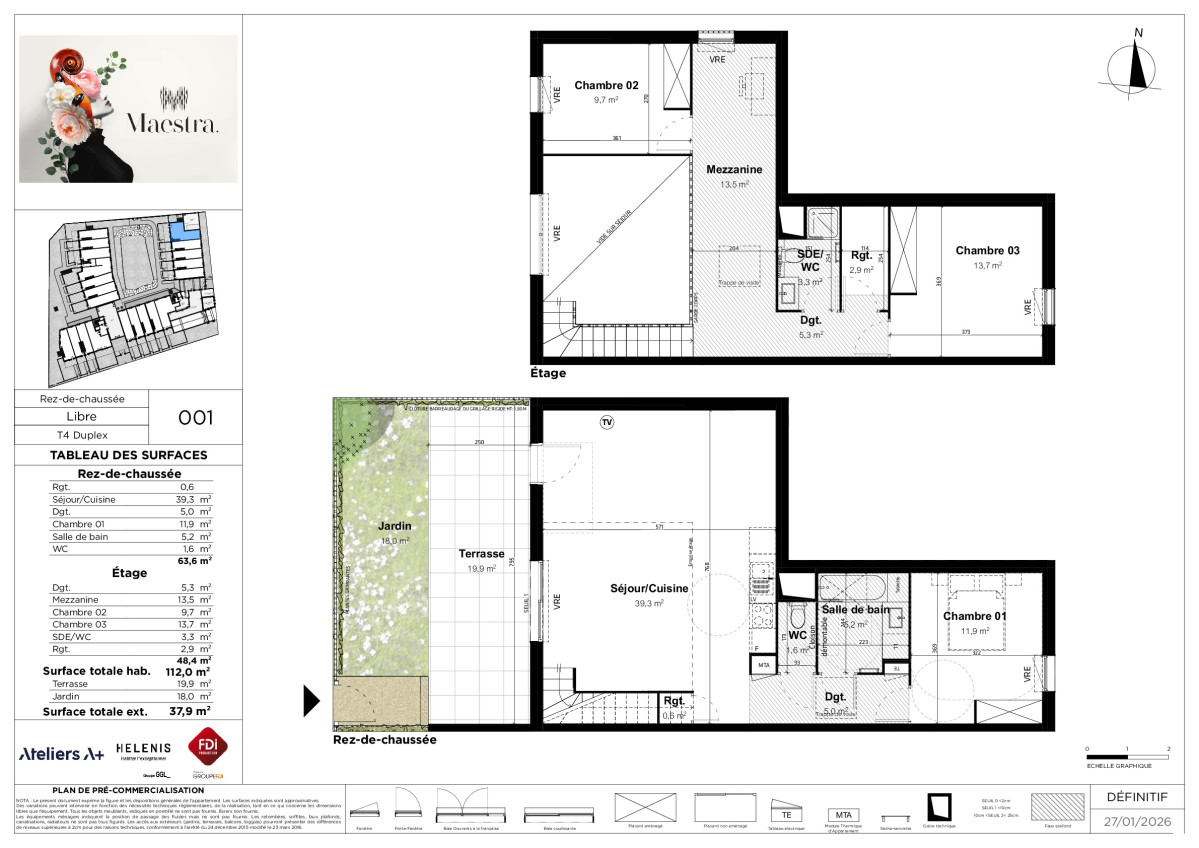
| A001 | 0 | N° de lot A001. Appartement + Parking sous-sol + Parking sous-sol Terrasse de 19,90 m² Jardin de 18,00 m² | 4p+ | 112,00 m² Plan | 5,5 % | ![]() | Plan | 429 913 € |
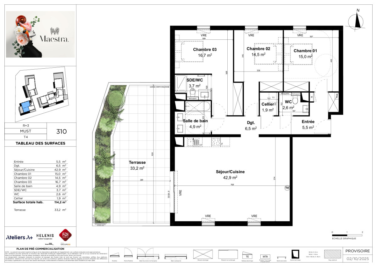
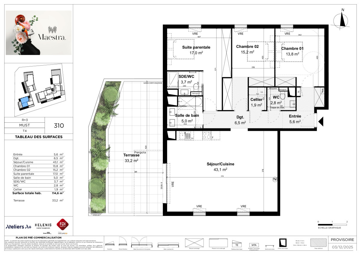
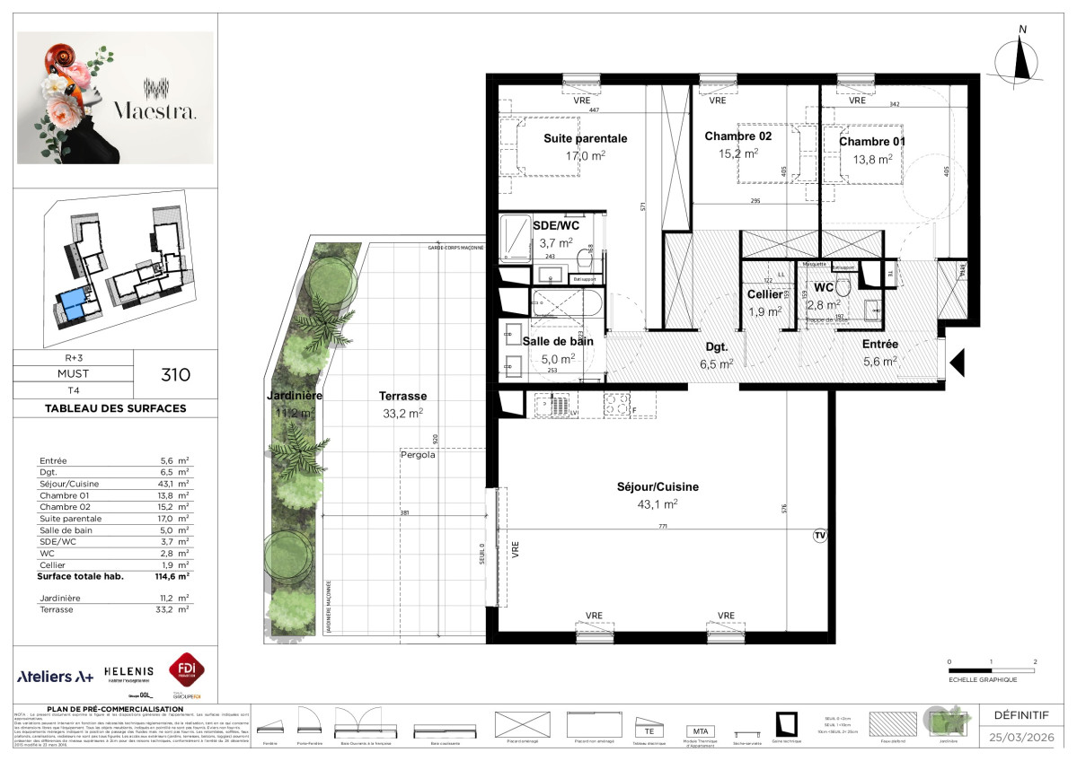
| A310 | 3 | N° de lot A310. Appartement + Parking sous-sol + Parking sous-sol Terrasse de 33,20 m² | 4p | 114,60 m² Plan | 5,5 % | ![]() | Plan | 493 213 € |
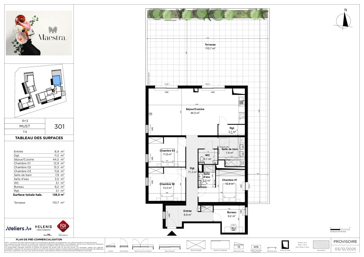
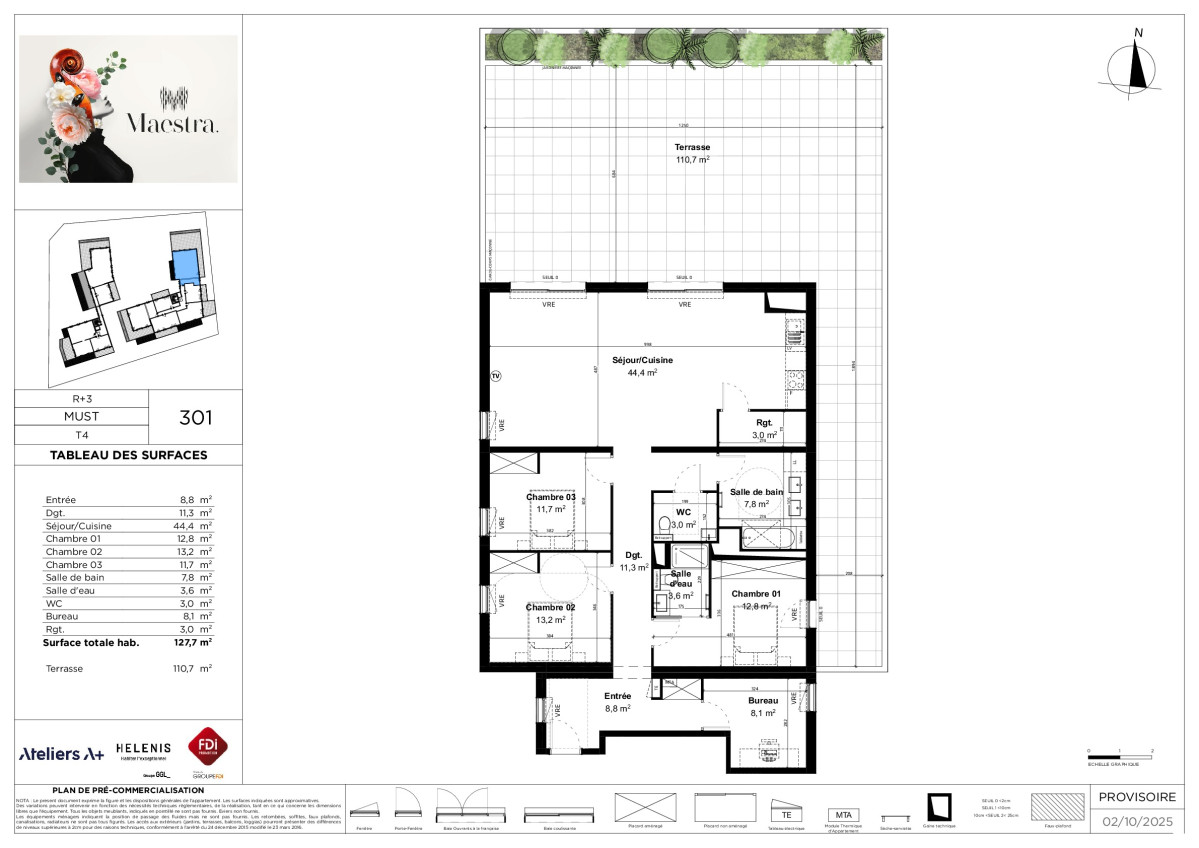
| A301 | 3 | N° de lot A301. Appartement + Parking sous-sol + Parking sous-sol Terrasse de 110,70 m² | 5p | 128,60 m² Plan | 5,5 % | ![]() | Plan | 589 042 € |
| N° LOT | ÉTAGE | NATURE | TYPE | SUPERFICIE | TVA | PLAN | PRIX | |
|---|---|---|---|---|---|---|---|---|
| A219 | 2 | Appartement + Parking sous-sol Balcon de 19,40 m² | 2p | 42,30 | 5,5 % | ![]() | Plan | 217 154 € |
| A103 | 1 | Appartement + Parking sous-sol + Parking sous-sol Terrasse de 23,50 m² | 3p | 68,90 | 5,5 % | ![]() | Plan | 282 213 € |
| A215 | 2 | Appartement + Parking sous-sol + Parking sous-sol Terrasse de 35,60 m² | 4p | 91,10 | 5,5 % | ![]() | Plan | 385 075 € |
| A001 | 0 | Appartement + Parking sous-sol + Parking sous-sol Terrasse de 19,90 m² Jardin de 18,00 m² | 4p+ | 112,00 | 5,5 % | ![]() | Plan | 429 913 € |
| A310 | 3 | Appartement + Parking sous-sol + Parking sous-sol Terrasse de 33,20 m² | 4p | 114,60 | 5,5 % | ![]() | Plan | 493 213 € |
| A301 | 3 | Appartement + Parking sous-sol + Parking sous-sol Terrasse de 110,70 m² | 5p | 128,60 | 5,5 % | ![]() | Plan | 589 042 € |
NOUVEAUX PRIX EN TVA 5.5% !
Une composition audacieuse, inspirée par l’élégance d’une cheffe d’orchestre visionnaire... Un lieu où l’architecture se fait musique, où chaque ligne, chaque matière, chaque silence trouve sa justesse...
Au cœur du quartier du Millénaire, la résidence s’installe
dans un environnement rare : à deux pas des commodités, à proximité du Parc
Jane Évrard et ses 5 000 m² de nature. Un équilibre parfait entre dynamisme
urbain et sérénité résidentielle.
La résidence MAESTRA propose un éventail de logements
adaptés à tous les styles de vie, avec 60 appartements allant du studio au 4
pièces sur 3 niveaux mais également des appartements T3 et T4 en duplex.
Chaque espace de vie a été conçu avec soin pour offrir
luminosité, volumes généreux, et confort moderne. Les larges terrasses et
jardins privatifs invitent à profiter pleinement du climat méditerranéen.
Les prestations, personnalisables, vous permettront de créer
un appartement qui vous ressemble !
Le Millénaire, une symphonie urbaine portée par la nature
Montpellier, modernité et tradition au diapason
MONTPELLIER
En chiffres*
- 302 454 habitants (1)
- 7ème ville de France
- 80 000 étudiants
- 235 km de pistes cyclables sécurisées avec le projet "vélolignes" dont 70%sera réalisé en 2026

