L'Orée des Plantes - Vivez la nature en cœur de ville de Montpellier

MONTPELLIER L'ORÉE DES PLANTES Vivez la nature en cœur de ville

À PARTIR DE 179 000 € TTC
livraison : 2ème trimestre 2027
MONTPELLIER

MONTPELLIER L'ORÉE DES PLANTES Vivez la nature en cœur de ville

À PARTIR DE 179 000 € TTC
livraison : 2ème trimestre 2027
MONTPELLIER

DEVENEZ PROPRIÉTAIRE À PRIX ABORDABLE

Découvrez L’Orée des Plantes, une résidence d’exception située en plein cœur de Montpellier, à deux pas du Jardin des Plantes. Ce projet de réhabilitation propose 4 appartements 3 pièces exclusivement éligibles en BRS (Bail Réel Solidaire), offrant un cadre de vie idéal pour les familles souhaitant allier praticité, confort et proximité avec toutes les commodités.

Galerie de photos

Plaquette numérique

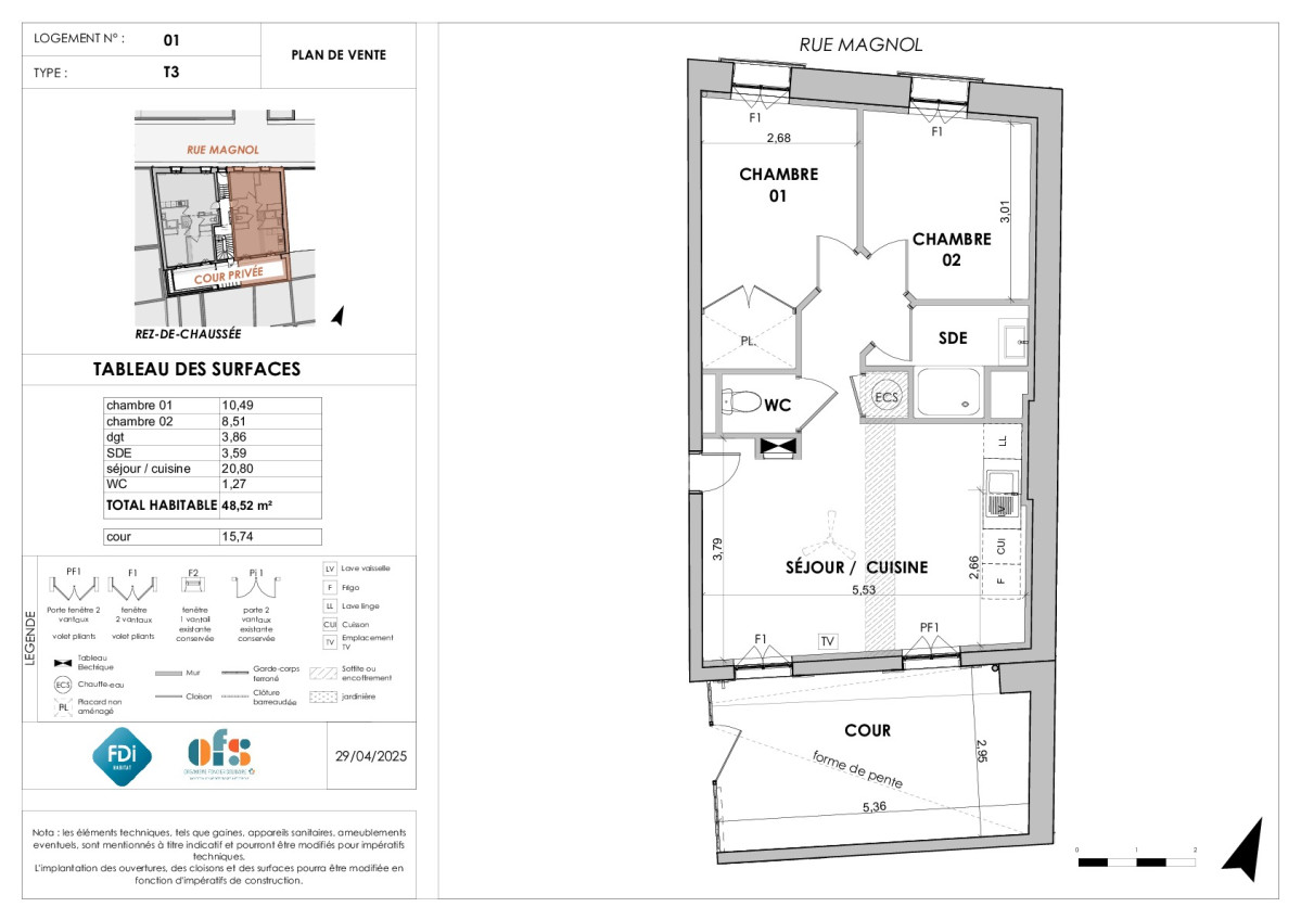
N° LOT ÉTAGE NATURE TYPE SUPERFICIE TVA PLAN PRIX
1 0 N° de lot 1. Appartement
Terrasse de 15,74 m²
3p 48,07 Plan 5,5 % Plan 179 000 €
N° LOT ÉTAGE NATURE TYPE SUPERFICIE TVA PLAN PRIX
1 0 Appartement
Terrasse de 15,74 m²
3p 48,07 5,5 % Plan 179 000 €

L’Orée des Plantes, une résidence intimiste nichée dans un quartier emblématique de Montpellier

À quelques pas du célèbre Jardin des Plantes de Montpellier, ce  projet de réhabilitation transforme une bâtisse au charme unique en 4 appartements 3 pièces , exclusivement éligibles au dispositif en Bail Réel Solidaire (BRS). Pensée pour les familles modernes, la résidence combine le confort d’un logement  à une localisation centrale qui facilite le quotidien.

Chaque appartement a été conçu pour répondre aux besoins des futurs résidents. Grâce au dispositif BRS, cette résidence offre une opportunité rare d’acquérir un logement à un prix accessible tout en bénéficiant d’un cadre de vie privilégié.

Proche des commerces, des écoles et des transports en commun, L’Orée des Plantes incarne l’équilibre parfait entre la vie urbaine et la sérénité, au cœur de Montpellier.

L’Orée des Plantes bénéficie est à proximité immédiate du Jardin des Plantes, véritable poumon vert et lieu emblématique de la ville. Ce quartier historique offre un cadre de vie agréable, mêlant rues pittoresques, marchés locaux, et commodités modernes.

Pour les familles, la résidence est idéalement située à proximité de nombreuses infrastructures scolaires :

  • Crèche : Crèche Babilou Montpellier Saint Jaumes (à 5 minutes à pied).
  • École primaire : École élémentaire Jeanne d'Arc  (à 7 minutes à pied).
  • Collège : Collège de l'Assomption (à 8 minutes à pied).
  • Lycée : Lycée Joffre (à 12 minutes à pied).

L'HÉRAULT, UN CADRE IDÉAL POUR UNE DOUCEUR DE VIVRE...

Situé en région Occitanie, l’Hérault est un département riche en paysages variés, allant des plages méditerranéennes aux montagnes du Haut-Languedoc. Dynamique et attractif, il séduit autant par sa douceur de vivre que par son patrimoine culturel et naturel. Montpellier, chef-lieu du département, incarne parfaitement cet art de vivre, mêlant modernité, histoire et innovation. 

Grâce à son climat ensoleillé et sa qualité de vie, l’Hérault attire chaque année de nouveaux habitants en quête d’équilibre entre vie professionnelle et personnelle.

MONTPELLIER

Montpellier, capitale dynamique de l’Hérault, est une ville où modernité et histoire se rencontrent. Réputée pour son climat méditerranéen et son ambiance chaleureuse, elle attire aussi bien les étudiants que les familles et les actifs. Entre ses ruelles du centre historique, ses grands projets urbains modernes comme le quartier Port Marianne, et ses nombreux espaces verts tels que le Jardin des Plantes, Montpellier offre une qualité de vie unique.

Avec un réseau de transports bien développé (tramway, bus, pistes cyclables) et une proximité immédiate avec la mer Méditerranée, la ville est un choix idéal pour celles et ceux qui recherchent un cadre de vie à la fois pratique, agréable et riche en opportunités culturelles et professionnelles.

CONTACTEZ-NOUS

Yann GUILLET Commercial Vente Directe


*Champs requis

Les informations collectées sont destinées à FDI PROMOTION et seront utilisées pour traiter votre demande de renseignement ainsi qu’à des fins de prospection. Vous disposez d’un droit d’accès, de rectification et d’opposition sur les données vous concernant. Pour en savoir plus, consultez notre Politique de confidentialité